
产品型号: | ZZYP | 适用介质: | 水、油品、蒸汽、液体 |
公称通径: | DN120 | 结构形式: | 自力式(单座、双座、套筒) |
公称压力: | 1.6MPa~6.4MPa | 毗连方法: | 法兰 |
适用温度: | -29?C~+180?C | 驱动方法: | 气动 |
阀体材质: | 铸钢、不锈钢 | 制造标准: | 国标GB、德国DIN、美国API、ANSI |
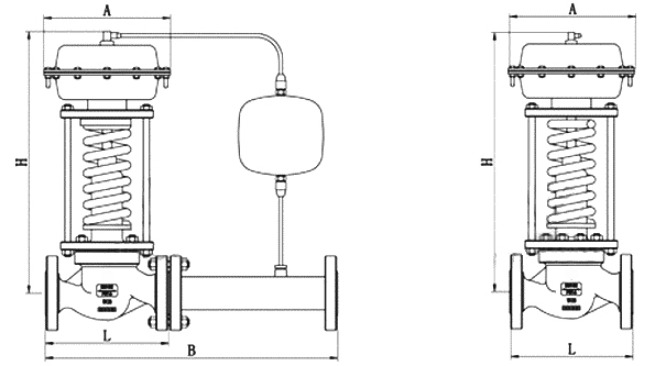
形状结构图

产品说明
本公司生产的ZZYP-DN120自力式气动调理阀无需外加能源,使用被调介质自身能量为动力源引入执行机构控制阀芯位置,改变两头的压差和流量,使阀前(或阀后)压力稳固,具有行动迅速,密封性好,压力设定点波动力小等优点,普遍应用于气体、液体及介质稳压或泄压的自动控制。
产品结构
本阀系列产品有单座(ZZYP)、套筒(ZZYM)、双座(ZZYN)、三种结构;执行机构有薄膜式、活塞式二种;作用型式有减压用阀后压力调理(B型)和泄压用阀前压力调理(K型)。产品公称压力品级有PN16、40、64;阀体口径规模DN20~300;走漏量品级有II级、IV级和VI级三档;流量特征为快开;压力分段调理从15~2500Kpa。可按需要组合知足用户工况要求。
产品特点
(1)无需外加能源,能在无电无气的场合事情,既利便又节约了能源。
(2)压力分段规模细且相互交织,调理精度高。
(3)压力设定值在运行时代可一连设定。
(4)对阀后压力调理,阀前压力与阀后压力之比可为10:1~10:8。
(5)橡胶膜片式检测,执行机构测精度高、行动迅速。
(6)接纳压力平衡机构,使调理阀反应迅速、控制准确。
公称通径DN | 20 | 25 | 32 | 40 | 50 | 65 | 80 | 100 | 125 | 150 | 200 | 250 | 300 | |
额定流量系数Kv | 7 | 11 | 20 | 30 | 48 | 75 | 120 | 190 | 300 | 480 | 760 | 1100 | 1750 | |
噪音权衡系数Z值 | 0.6 | 0.6 | 0.6 | 0.55 | 0.55 | 0.5 | 0.5 | 0.45 | 0.4 | 0.35 | 0.3 | 0.2 | 0.2 | |
允许压差 | PN16 | 1.6 | 1.5 | 1.2 | 1,0 | |||||||||
PN40 | 2.0 | |||||||||||||
阀盖形式 | 标准型-17~+300℃、高温型+300℃~+450℃ | |||||||||||||
压盖型式 | 螺栓压紧式 | |||||||||||||
密封填料 | V型聚四氟乙烯填料、含浸聚四氟乙烯石棉填料、石棉纺织填料、石墨填料 | |||||||||||||
阀芯形式 | 单座、套筒型阀芯 | |||||||||||||
流量特征 | 线性 | |||||||||||||
有用面积(cm ) | 32※ | 80 | 250 | 630 |
压力设定规模(MPa) | 0.8~1.6 | 0.1~0.6 | 0.015~0.15 | 0.005~0.035 |
0.3~1.2 | 0.05~0.3 | 0.01~0.07 | ||
包管压力阀正常事情的 | ≥0.05 | ≥0.04 | ≥0.01 | ≥0.005 |
允许上下膜室之间最大压差(MPa) | 2.0 | 1.25 | 0.4 | 0.15 |
质料 | 膜盖:钢板镀锌; 膜片:EPDM或FKM夹纤维 | |||
控制管线、讨论 | 铜管或钢管10×1; 卡套式讨论:R1/4" | |||
注:※该有用面积所对应的压力设定规模不适用于DN150-250。
设定值误差 | ±8% | |||
允许泄露量 | 硬密封 | 4×0.01%阀额定容量 | ||
软密封 | DN15~50 | DN65~125 | DN150~250 | |
10气泡/min | 20气泡/min | 40气泡/min | ||
事情温度
公称通径 | 15~125mm | 150~250mm | |
密封型式 | 硬密封 | ≤150℃ | ≤140℃ |
冷却罐≤200℃ | 冷却罐和加长件≤200℃ | ||
冷却罐和散热片≤350℃ ※ | 冷却罐和加长件≤300℃ ※ | ||
软密封 | ≤150℃ | ||
注:※体现该阀允许事情温度,仅当介质为蒸汽时有用,且耐温至350℃需选用PN40的阀体。
质料代号 | C(WCB) | P(304) | R(316) | |
主要 | 阀体 | WCB(ZG230-450) | ZG1Cr18Ni9Ti(304) | ZG1Cr18Ni12Mo2Ti(316) |
阀芯、阀座 | 1Cr18Ni9Ti(304) | 1Cr18Ni9Ti(304) | 1Cr18Ni12Mo2Ti(316) | |
阀杆 | 1Cr18Ni9Ti | 1Cr18Ni9Ti | 1Cr18Ni12Mo2Ti | |
膜片 | 丁睛橡胶、乙丙橡胶、氯丁胶、耐油橡胶 | |||
膜盖 | A3、A4钢涂四氟乙烯 | |||
填料 | 聚四氟乙烯、柔性石墨 | |||
弹簧 | 60Si2Mn | |||
导向套 | HPb59-1 | |||
主要形状尺寸
公称通径(DN) | 20 | 25 | 32 | 40 | 50 | 65 | 80 | 100 | 125 | 150 | 200 | 250 | 300 | ||
法兰接受尺寸(B) | 383 | 512 | 603 | 862 | 1023 | 1380 | 1800 | 2000 | 2200 | ||||||
法兰端间距(L) | 150 | 160 | 180 | 200 | 230 | 290 | 310 | 350 | 400 | 480 | 600 | 730 | 850 | ||
压力调理规模(KPa) | 15-140 | H | 475 | 520 | 540 | 710 | 780 | 840 | 880 | 915 | 940 | 1000 | |||
A | 280 | 308 | |||||||||||||
200-500 | H | 455 | 500 | 520 | 690 | 760 | 800 | 870 | 880 | 900 | 950 | ||||
A | 230 | ||||||||||||||
120-300 | H | 450 | 490 | 510 | 680 | 750 | 790 | 860 | 870 | 890 | 940 | ||||
A | 176 | 194 | 280 | ||||||||||||
480-1000 | H | 445 | 480 | 670 | 740 | 780 | 850 | 860 | 880 | 930 | |||||
A | 176 | 194 | 280 | ||||||||||||
600-1500 | H | 445 | 570 | 600 | 820 | 890 | 950 | 1000 | 1100 | 1200 | |||||
A | 85 | 96 | |||||||||||||
1000-2500 | H | 445 | 570 | 600 | 820 | 980 | 950 | 1000 | 1100 | 1200 | |||||
A | 85 | 96 | |||||||||||||
约莫重量(Kg) | 26 | 37 | 42 | 72 | 90 | 114 | 130 | 144 | 180 | 200 | 250 | ||||
到茏鬈接口螺纹 | M16X1.5 | ||||||||||||||